3 Bedroom Unit Available NOW!
Description
- 2 story
- 1st floor–kitchen, living room, dining room, laundry area, utility room and 1/2 bath.
- 2nd floor–2 or 3 bedrooms and a full bath.
Floor Plans
Unit A (3 bedroom)
- 1,405 sq. ft.
- 237 sq. ft. garage
- Total Sq. Ft. – 1,642
- Number of Units – 7
- Rent is $850.00
Unit A (3 bedroom)
- 1,428 sq. ft.
- 237 sq. ft. garage
- Total Sq. Ft. – 1,665
- Number of Units – 1
- Rent is $850.00
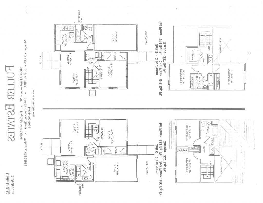
Unit B (2 bedroom)
- 1,263 sq. ft.
- 237 sq. ft. garage
- Total Sq. Ft. – 1,500
- Number of Units – 2
- Rent is $775.00
Unit C (2 Bedroom)
- 1,244 sq. ft.
- 237 sq. ft. garage
- Total Sq. Ft. – 1,461
- Number of Units – 1
- Rent is $775.00
Unit D (2 bedroom/handicap accessible)
- 1,310 sq. ft.
- 287 sq. ft. garage
- Total Sq. Ft. – 1,461
- Number of Units – 1
- Rent is $775.00
Twinhomes (3 bedroom)
- 1 1/2 bath
- 2 stall garage
- Washer/dryer hook ups
- Patio
- Number of units – 4
- Rent is $865.00
For more information on the affordable properties with rents based on income, townhomes for low to moderate income or market-rate properties, contact:
Gayle Hager, Property Manager
SEMMCHRA
134 East Second Street
Wabasha, MN 55981
P: (651) 565-2638 ext. 205
F: (651) 565-3836
E: propertymanager@semmchra.org










